Loft in vendita

Torino, Via Pietrino Belli - Parella
€ 249.000
2 locali 2 locali
65 Mq 65 Mq
1 bagno 1 bagno

Loft in vendita

Torino, Via Pietrino Belli - Parella

Descrizione annuncio

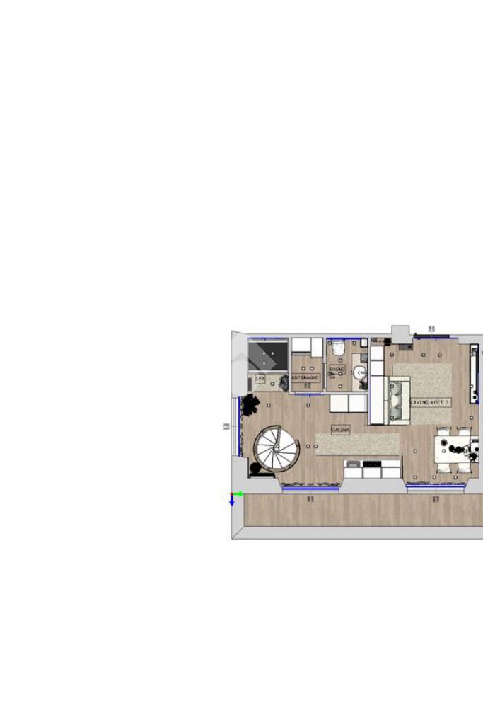
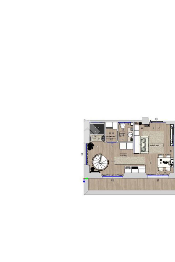
LOFT1 APPARTAMENTO ESCLUSIVO CON TAVERNA mq 45 commerciali piu 40mq tavernetta


Consegna prevista novembre 2026.


Vieni ad innamorati di casa tua attraverso il Visore ottico di nuova generazione che ti permetterà in tempo reale in loco di vedere ogni dettaglio di questo prestigioso immobile.


Design, benessere e outdoor esclusivo nel cuore della città In una delle zone più riservate e centrali di Torino, proponiamo un appartamento di prestigio che unisce architettura contemporanea, comfort abitativo e benessere privato, offrendo un’esperienza abitativa unica per chi cerca il meglio.

Composizione: ingresso living su soggiorno con cucina totalmente arredata su misura letto a scomparsa motorizzato, con divano, disimpegno, ampio bagno di design con SPA e zona lavanderia.

Area wellness privata: doccia idromassaggio professionale con bagno turco integrato, cromoterapia e musicoterapia alta definizione.

Spazi esclusivi: tavernetta con mattoni a vista collegata internamente all'appartamento di pari dimensioni, vivibile tutto l’anno grazie al completo isolamento.

Finiture di pregio: parquet rovere chiaro, illuminazione architetturale, arredi su misura, impianto domotico, riscaldamento autonomo, aria condizionata.

Progettato completamente perseguendo un'idea green zero impatto, costi energetici irrisori e efficienza massima in classe A2 con riscaldamento autonomo con radiatori.

Mostra tutto

Nelle vicinanze

Trasporto pubblico Trasporto pubblico
Rivoli
Rivoli
840 m
Racconigi
Racconigi
880 m
stazione di Torino Porta Susa
stazione di Torino Porta Susa
2,1 Km
Torino Dora GTT
Torino Dora GTT
2,7 Km
Lecce
Lecce
270 m
Ricariche auto elettriche Ricariche auto elettriche
Bluetorino Risorgimento
770 m
Bluetorino Porta Susa FS
2,0 Km
Bluetorino Fidia
2,1 Km
evway TO Porta Susa
2,1 Km
evway TO Statuto
2,2 Km
Scuole Scuole
Scuola dell'infanzia "Suor Giuseppina De Muro"
230 m
Scuola elementare "Italo Calvino"
310 m
Scuola primaria "Alessandro Manzoni"
430 m
Scuola media "Costantino Nigra" (Succursale)
470 m
Scuola Elementare "Neil Armstrong"
520 m
Farmacia Farmacia
Serravalle Eredi
160 m
Farmacia Santa Marta
250 m
Farmacia Rinetti Dr. Paolo
380 m
Farmacia
480 m
Stroppiana
560 m
Ospedali Ospedali
Ospedale Maria Vittoria
940 m
Amedeo di Savoia
1,3 Km
Ospedale Amedeo di Savoia
1,4 Km
Ospedale Oftalmico
2,3 Km
Ospedale Martini - Emergency
2,3 Km
Supermercati Supermercati
Sigma
280 m
iN's
330 m
Pam
540 m
Gelmarket Torino Fabrizi
610 m
Borello Supermercati
690 m
Negozi Negozi
Il vecchio forno
250 m
Carrefour Express
410 m
Panificio Cirasola
490 m
El pan d'na Volta
570 m
Pastificio Profeta
600 m
Bar Bar
Bar Alessandria
180 m
Il chiosco della Tesoriera
710 m
Caffè Arcadia
810 m
I 3 Motivi
990 m
London Bar
1,0 Km
Ristoranti Ristoranti
Il sogno
300 m
Ristoranti
340 m
Pizzalandia Di Alu' Pietro
350 m
Kebaguette
390 m
Au Lapin Agile
390 m
Mostra tutto

Caratteristiche

Rif.:
61167312
Piano:
Su più livelli di 4 con ascensore
Totale piani:
4
Terrazzi:
1
Camere da letto:
1
Arredamento:
Completo
Mostra tutto
Prezzo Prezzo
€ 249.000
Rata mutuo Rata mutuo
€ 1.173 / mese
Spese annue Spese annue
€ 800
Proponi il tuo prezzoProponi il tuo prezzo

Classe Energetica

A2
A2
A2
A2
A2
A2
A2
A2
A2
EP globale non rinnovabile:
0.00 kW h/m² anno
EP globale rinnovabile:
0.00 kW h/m² anno
EP invernale del fabbricato:
EP estiva del fabbricato:
Anno di costruzione:
1950
Riscaldamento:
Autonomo
Tipo impianto:
A radiatori
Tipo alimentazione:
Metano

Ti interessa visionare l'immobile?

Fissa un appuntamento  Fissa un appuntamento

Richiedi informazioni

Clicca su Leggi per aprire l'informativa
* Questi campi sono obbligatori

Calcola il tuo mutuo

Semplice e senza impegno
Anticipo

( % )
Mutuo

( % )

pochi semplici passi

inserisci i tuoi dati
Questionario completato
Grazie per aver richiesto un appuntamento senza impegno con un nostro Consulente del Credito e Assicurativo.

Hai inserito correttamente tutti i dati necessari e a breve riceverai una e-mail con un link da convalidare per inviare i tuoi dati.
Affiliato
Parella Re Sas
Corso Monte Grappa, 58 10143 Torino (TO)

Il nostro staff


  • Giovanni Nazzaro
    Affiliato
Corso Monte Grappa, 58 10143 Torino (TO)
Zona: Torino Parella-Campidoglio
Mostra su mappa
Orari: LUN - VEN 9.00 -12:30 / 15:00-20:00 SAB: 9.00-12:30 / 14.30-17.30
Affiliato
Parella Re Sas
Corso Monte Grappa, 58 10143 Torino (TO)

2026 Tecnocasa Franchising S.p.A. - P. IVA 08365160152 - Via Monte Bianco 60/A 20089 Rozzano (MI). Ogni agenzia ha un proprio titolare ed è autonoma. Privacy policy | Policy utilizzo | Cookie policy